广州品茶嫩茶,深圳龙岗区大圈品茶工作室,上海大圈品茶工作室怎么预约,全国高端商务模特经纪公司

松夏减震器,安全又耐用

咨询电话:

17317317121(微信同号)


橡胶减震器

JNDE型橡胶减震器

JNDE型橡胶减震器简介

  JNDE型橡胶减震器特性:

  JNDE型橡胶减振器是由一头配螺栓的钢板,一头配内丝的钢板,中间圆柱形橡胶体组成,可压缩和伸长,具有结 构简单,安装方便,耐油,耐酸碱,抗老化,耐温等性能,广泛应用于电子仪器,仪表,设备柜内,也可以用风 机,水泵,冷水机组等。由上下钢板完全分离,不需另加附件即可减断声桥传递,是一种非常实用的减振器,尤 其适用于电子仪器仪表。

  JNDE型橡胶减震器尺寸表:

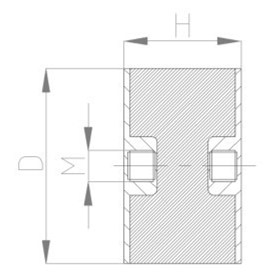
JNDE型橡胶减震器结构
JNDE型橡胶减震器参数图

您可能对以下内容感兴趣


减震知识

使用安装

案例展示